早いものでは今秋にも着工に入るようだ。
コレクティブハウジングのニーズについては、 今年2月に県が行った応急仮設住宅入居者調査で、 「気心の知れた数世帯が一緒になって協同生活ができるような共同住宅」への希望を聞いているが、 11.5%が住みたいと答えている。
また「同じ仮設住宅団地の入居者がまとまって入居し、 現在のコミュニティを維持できる賃貸住宅」への希望については、 17.2%が入居したいと答えている。
震災後の避難所や仮設住宅で協同居住を体験し、 集まって住むことの良さが再認識されたようだ。
震災で消えてしまった下町は、 住まいの近くにかかりつけの医院や気軽に外食できる喫茶店や食堂があり、 銭湯があり、 比較的簡単に内職程度の働き口を見つけることもできた。
地域コミュニティでお互いの安否確認や生活支援がなされており、 地域が住まいの続きのような機能を充たしており、 コレクティブタウン(協同居住の町)といえる状態であった。
災害公営住宅でのコレクティブハウジングは、 それぞれの住戸は少しコンパクトになるが、 台所、 風呂、 便所は備わっており、 それに共有スペースは(共同の台所、 食堂、 談話室、 洗濯室等)をもったような住宅になる。
共有スペースは入居者が協同で使用し、 維持管理していくことになるが、 ハードの器ができただけでは、 協同居住は稼働しない。
順調な協同生活が展開されるためには、 協同生活サポートシステムが必要である。
どのようなサポートが必要なのかは、 各プロジェクトの設計と並行して自治体と設計者がつめているが、 私なりのその概略をあげてみる(次号で協同居住の管理・運営とそのプログラムのモデルを掲載予定)。
(1)入居者までのシステムづくり
(ex.普及のための啓発活動、 入居希望者登録制度、 グループ入居の誘導と制度の採用、 モデルハウスの設置等)
(2)入居決定後、 入居までの間の協同居住の学習と協働トレーニング(ex.協同生活運営のシュミレーション、 協働トレーニング<大量調理やハウスクリーニングの研修等>、 協同生活ルールづくり、 協同生活運営規則案づくり等)→最低でも半年位の期間が要る。
入居前のトレーニングを通じて居住者が仲良くなることが大切である。
(3)入居後の協同生活の運営
(ex.協同生活運営住民組織の設置、 協同生活運営規則、 協同生活運営チームの設置<食事グループ、 メンテナンスグループ等>等)
(4)住宅供給主体と入居者間の契約事項
(ex.住戸と共同住宅の共同スペースとコレクティブ共有スペースについての3区分の維持管理規則の締結<個人契約と住人組合との2本だて契約>、 入退居者決定について個人及び住人組合との契約事項等)
このような協同居住運営のためのソフトシステムづくりは、 我が国では未知の分野であり、 協同居住を軌道に乗せるためのコーディネーターが必要となるが、 その人材確保や育成についても開拓を要する。
特に公営住宅という硬直した仕組みの中で、 新しい住まい方が定着し実践していけるかどうか不安がないわけではないが、 21世紀の住まい方のひとつのモデルとして定着させたい。
コレクティブハウジング事業推進応援団の活動の次の展開として、 ソフトシステムづくりのために、 医師や福祉関係者が中心となって「長田・協同居住支援団(NCCN長田コレクティブケアネットワーク)」と「尼崎で協同居住型住宅を実現させる会」が活動を始めており、 そこへ都市プランナーも参画している。
また、 居住者への啓発活動として、 「久二塚6丁目まちづくり協議会・住宅部会」ではコレクティブハウジングについての住民意見交換会の2回目を開いた。

この地域への共同建替の働きかけ、 および計画支援も、 まちづくり活動の一環として、 神戸市の民間再開発課(現在の再開発課)と我々専門家支援チーム、 そして7丁目自治会役員との協力のもと、 震災後のかなり早い時期から開始された。
真野のまちづくりの一環として考えるならば、 この共同建替の目標は、 単なる建物の再建だけでは不十分であり、 もともとそこに住んでいた人(当然借家人も含めて)が再び住み続けられるような再建(生活の再建)を目指して取り組まれている。
当初、 地域の権利者に対して「共同化」への意向を聞くヒアリングを行い、 そのなかで可能性のある人・地域を対象に、 会合を重ねていった。
この時点では、 まだ行政の支援制度も明確になっていなかったため、 市や公社との打ち合わせを繰り返しながら、 権利者の不安に(不十分ながらも)答え、 「共同建替」への参加意向を確認し、 固めていく作業が中心であった。
当然、 参加予定者の出入りもあり、 敷地形状は度々変動している。
行政サイド自体が手探り状態で支援制度を組み立てている時期であったため、 初動期における制度の検討はかなり難航した。
また、 現存する制度や融資を用いてあらゆる可能性を求めて、 各機関と打ち合わせをしたが、 それぞれ問題点が発生し(権利関係の複雑さから考えると仕方ないが)、 なかなかいい再建方法が見つからず権利者をいらいらさせる日が続いた(もちろん我々もであるが……)。
7月くらいから住宅・都市整備公団の制度の活用の可能性を求めて、 公団とも協議を開始し、 公団とも協議を開始し、 公団が積極的に取り組む姿勢を示してくれたことにより、 ようやく本事業の実現の可能性が見えてくることとなった。
公団にとっても「民賃制度」と「グループ分譲制度」の一体的な(しかも同じ棟の中に混在する)運用は例がないということで、 内部でかなり検討がなされたようだが、 最終的には、 この方法しかないということで一体的な運用を決定して頂けた。
また、 公社の管理する「特目賃」に他の性格をもつ住宅(持家)が混在することを内部で検討していただき、 今回の復興にとってこの混在を避けては通れないという判断をして頂けたことは、 事業の促進に大きな影響を与えた。
このような経緯で現在のような実現可能な支援制度、 および事業主体が明らかになったのは、 ようやく、 95年の9〜11月あたりで、 その時点から計画は一気に進展することになる。
加えて、 権利者・借家人とも高齢化が著しい上、 震災で多くのものを失って資金力が低いことを考えあわせるならば、 一般論としてはここでの共同建替の実現はかなり難しいはずである。
実際、 我々も、 当初この事業に関わった時点では、 実現はかなり難しいと考えていた。
にも関わらず、 いろいろ紆余曲折はありつつも、 いまのところ、 全体としてはきわめてスムーズに進んでいる。
これは何故なのか。
種々の支援制度の追い風が大きな効果を発揮したことは実感として感じているが、 それだけではこの地域の共同建替が(たぶん他地域よりスムーズに)進みつつある理由としては不十分である。
今回の震災における被災地のうち、 共同建替によって生活再建を果たす他ないような地域は、 たぶん多かれ少なかれこの立江地区と同じような状況であるとするならば、 この地域において、 一般的には不利な条件を抱えながら共同化が進行しつつある要因を整理しておくことは、 他地域における共同化推進の参考になりえるにちがいない。
共同化を促した要因の一つは、 明らかにそれ以外の選択肢の少なさによるものであろう。
先述したように、 この地域においてはある程度条件の良い敷地でしか個別建替は難しく、 その意味においては、 ほとんどの権利者(とりわけ「路地」の奥の住民)にとって「共同建替」はほとんど唯一の可能な選択なのかもしれない。
しかも、 今回は全てが焼失してしまっているため、 「現状維持」はありえず、 何らかの方法を選択するほかなかったのである。
とはいえ、 似たような状況におかれながら共同建替がうまく進まない地域が多いことでも分かるように、 「共同化」に対する抵抗は一般的にはかなり根強いものがある。
ところが、 この地域の人達は(とりわけ、 今回の事業に参加した人達は)自分たちの生活を再建するためには「共同建替」が望ましい方法であるということをきわめて自然に理解しており、 かつ当初から「共同化」への拒絶感はほとんどなかった(少なくとも、 表だって表明されることはなかった)。
この地域の住民たちが共同建替になじみやすい理由は、 一つには近所つきあいの強さ、 もう一度ここに戻りたいという思いの強さ、 お互い支え合うことで一緒に生活再建をしようという気持ちの強さによるのであろうが、 いま一つの大きな要因は、 真野地区が「まちづくり」の成果として、 既に共同建替のモデルを提示しえていることであろう。
しかも、 その建物は震災の中でびくともせず、 真野の人達に「まちづくり-共同建替」の力を強く印象づけたばかりである。
みんな理屈ではなく実体として「共同建替」を既に知っているためで、 「共同化」に対する抵抗が少なかったのである。
「共同化」のスムーズな進行を支える二つ目の要因は、 みんなが住み続けていける「まちづくり」として本事業を捉え、 支えていこうとする周辺の支援の力の大きさである。
「まちづくり相談役」として住民の信頼を得ている真野地区のコミュニティプランナー宮西さんの果たす役割の大きさは言うまでもないが、 それとともに、 村瀬氏や岡氏といったまちの世話役が、 住民への連絡から個別の相談、 果ては事業覚書の立会調印まで、 (自分のことでもないのに)今回の建替に一貫して関わり続けていることの持つ意味は、 住民の不安感を抑え、 皆で支え合う気持ちを高めていく上でもきわめて大きい。
いま一つは、 この事業の権利者達、 とりわけ地主達が、 「ここに住み続けたいと願う人がみんな住み続けていける再建」という思いをごく自然に共有し得ている点である。
とりわけ、 地主が、 損はしないにしろ決して割のよくない事業であることを承知の上で、 従前借家人が戻ってこれるように借家経営の継続を決意してくれたことの意味は大きい。
ただ、 他の共同建替の事例(上尾市仲町愛宕地区・門真市のカルチェ・ダムール)の示すところによれば、 このような地主の志向は決して真野に限らない。
「損をしてまでいいことをしようとする人は少ないが、 みんなどうせならいいことをしたいと思っている」とすれば、 どの地域においても、 適正な支援とアドバイスがあるならば、 「共同化」に協力する地主は多いはずである。
合わせて、 今回の共同化を進める上で、 支援チームも行政も、 住民不在でことを進めたり決定事項を住民に押しつけたりはせず、 全てを明らかにし、 十分説明し、 ステップ・バイ・ステップでことを進めるよう心がけてきたし、 個別ヒアリングを何度も繰り返して不安や疑問を個人的・具体的なレベルで解消してきている。
住民の不安を軽くし、 支援チームへの信頼を生み出すという意味だけでなく、 我々支援チームにとっても住民の思いを実感することで自信を持って提案を行えたという意味において、 このような丁寧な応答プロセスをとることはきわめて重要であることも指摘しておきたい。
その案に基づいて、 個別ヒアリングを行い、 共同建替に参加するか、 また資金計画はどうか、 などの状況を確認した。
またヒアリングの中でどのような生活を取り戻したいか、 記憶に残る風景なども聞き、 計画案作成の参考にした。
資金計画や家族数からおおよその間取り構成、 広さが想定され、 身体の状況からできるだけ1階で生活した方がいい世帯については自然と他の住民からのコンセンサスが得られる中で、 従来からのまちの構造に少しでもなじむような生活の場を再建する計画が支援制度の組み立てと共にできてきた。
〜めざすは下町型集合住宅!〜という考えのもとに、
また、 従前借家人の住宅についても家族数や生活のしかたについて聞き取り、 できるだけ生活にあった住まいづくりを心がけよう。
このまますべてが順調にいけば、 来年の今頃には竣工を迎え、 入居しているはずであるし、 絶対そうなると確信している。
そして迎える8月には、 地蔵盆がさらににぎやかにまつられ、 『立江地蔵』も安堵しているはずである。
(本文は、 (株)関西都市整備センターより委託された『阪神地区における共同建替検討調査』より一部加筆修正したものです。)
これは、 「阪神グリーンネット」と「ドングリネット神戸」により行われたもので、 参加した造園関係者、 コンサルタントたち約30人は、 生垣をモデル的に実際につくったり、 キバタイワンレンギョウ(沖縄からの寄贈)やどんぐりの苗の配布、 プランターや土の安価販売、 緑化相談等を行いました。
当日は、 近隣の方々のみならず、 楠丘町・高徳町以外の方も口コミで多数メイン会場の寿公園に訪れ、 阪神グリーンネットとドングリネット神戸のメンバーは、 対応に大わらわの状態でした。
その後の復興は急速で、 なんとか早く元の生活を取り戻したい住民達の多くは、 ハウスメーカー系の戸建住宅を建てており、 庭や植栽を施す余裕もなく、 さながら住宅展示場の景観を呈し始めました。
このようなことから、 緑の面での住民支援の必要性が認識されはじめ、 被災地の緑化を地域ぐるみで行う第1号として「楠丘プロジェクト」が、 ランドスケープに関わる専門家たちによって行われました。
今後は、 この取り組みを一時のイベントに終わらせることなく住民の自発的な取り組みへと発展させていくため、 継続的な支援や啓発活動(数カ所の生垣づくりやつくった生垣への看板設置、 秋に同様のイベントの開催、 緑化相談等)が予定されています。
真野地区・東尻池町7丁目立江地区共同建替(第2回)
立命館大学助教授 乾 亨
柴山建築研究所 柴山 直子
(真野・東尻池町7丁目立江地区共同建替支援チーム)事業の経過
この事業が行われる真野地区は既知のとおり、 住民主体のまちづくりに取り組んできたまちであり、 震災後も住民組織が中心となって復興まちづくりを進めている。
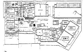
共同建替住戸見取り図 斜線は持ち家/他は特目賃事業の特質
一般的には、 「共同建替」は、 ある程度の余剰床がうみ出され、 それによって事業者(権利者)の負担が軽減される(あるいは収益が上がる)ような経済的メリットがあってはじめて実現し得るものと言われているが、 この事業ではもともとの1住戸の敷地があまりにも狭小であるため、 戸当たり住戸規模を拡大(適正化)することで精いっぱいで、 ほとんど余剰床をつくることは不可能である。建築計画概要と経過
支援制度がまだ見えていない頃、 このような敷地形状で、 建物が建つのか、 また費用はどれくらいかかるのかを試算するために計画案を作成した。
という考えを持ちながら、 3月から4月にかけて住民の方と個別設計の打ち合わせを重ねながら、 現在、 8月着工を目指して、 実施設計のまっただ中である。
(おわり)
配置設計図
共同建替・完成イメージ図
楠丘プロジェクト実施!
阪神グリーンネットによる被災地緑化活動始動
梅雨の晴れ間の6月23日(日)、 神戸市灘区の楠丘町・高徳町一帯で、 被災地の緑化活動の取り組みが始まりました。
阪神グリーンネット、 ドングリネット神戸による
苗木の配布・緑の相談など(6/23灘区寿公園にて)
再建した住宅での生垣づくり
(神戸市灘区楠丘町)INFORMATION
連続映画祭・第3回「連帯せよ!復興市民」
日時:7月11日(木)18:00開場、 18:30開会〜21:00
1部:「人間のまち、 野田北部・鷹取の人々-第3部」
の上映と青池監督の語り
2部:シンポジウム「市民まちづくりの芽生え」
青池憲司、 片寄俊秀、 武田則明、 小山乃里子、
天川佳美、 小林郁雄
場所:こうべまちづくり会館2階ホール
(神戸市中央区元町通4丁目、 078-361-4523)
入場無料:ただし監督へのカンパ要長田のよさを生かしたまちづくり懇談会
日 時:7月5日(金)18:00〜
場 所:細田福祉センター(長田区細田町7-1-30、 細田住宅1F)
テーマ:住宅共同化などの事業手法について(宮西悠司)シンポジウム「復興まちづくりにおける緑と水の役割」
日 時:7月13日(土)14:00〜17:00
場 所:神戸大学滝川記念学術交流会館
発表者:森山正和(神大)、 小林郁雄(コー・プラン)、
沖村孝(神大)、 河村廣(神大)
コメンテータ:高木雅章(神戸市)、 上原正裕(兵庫県)、
池口仁(人と自然の博物館)中山手まちづくり祭
日時:7月14日(日)12:00〜
場所:山手本通商店街
主催:中山手3・4丁目まちづくり協議会
内容:中山手3・4丁目将来像の展示、 まちづくり相談、 三田太鼓、
ジャズグループの演奏、 他まちづくりフェスティバル
日時:7月14日(日)13:00〜18:30
―伝統の継承、 人形文化にふれよう―
場所:西宮えびす神社
内容:「まちづくりシンポジウム-考えようわがまちにしのみや-」
(高坂健次、 河内厚郎、 他)、 人形浄瑠璃・人形劇他の公演他
主催:(社)西宮青年会議所ネットワーク事務局より
第16回・東部市街地連絡会
日 時:7月19日(金)18:30〜
テーマ:灘区・東灘区の区別計画について
今後の取り組み内容について
場 所:神戸Fビルディング
第14回西部市街地連絡会(6/13)。
地区別の総括的な報告会を行い、 活気ある会合となりました。
P.4
Restoration from the Hanshin Earthquake Disaster/SUPPORTER'S NETWORK for community development “Machi-zukuri”
〒657 神戸市灘区楠丘町2-5-20
まちづくり株式会社コー・プラン
TEL.078-842-2311 FAX.078-842-2203
担当:天川・中井
〒657 神戸市灘区六甲台町1
神戸大学工学部建設学科
TEL.078-803-1017 FAX.078-881-3921
担当:大西 一嘉
きんもくせい31号へ
このページへのご意見は学芸出版社/前田裕資へ
(c) by 阪神大震災復興市民まちづくり支援ネットワーク事務局
学芸出版社
詳細目次へ
支援ネットワーク関連ページへ
『震災復興まちづくり』ホームページへ
学芸出版社ホームページへ